Рейтинг@Mail.ru
Выберите свой регион строительства
Крымский федеральный округ
Крым
Режим работы: Пн. - Пт. - 9:00 - 19:00 | Сб.,Вс. - Выходной
Заказать строительство
Заказать смету
Пример проектной документации
Вопросы и ответы
Telegram MAX
Поиск по параметрам

Проект дома 79-22 площадь 142.0 м2*

* - площадь отапливаемых помещений, не включает площади: террасы, крыльца, балконов

Материал LVL
Число этажей 2 этажа
Гараж без гаража
Комнат 3

35 358 ₽

Площадь 0
Характеристики
Площадь отапливаемых помещений 142,87 м2
Состав проекта АР, КР ( архитектурные и конструктивные решения)
Зеркальная версия Может быть разработана на заказ
Габариты здания: ширина 2 (мм.) 12000
Тип фундамента Монолитный ж/б
Материал несущих стен Деревянный каркас
Конструкция кровли мансардная
Материал отделки фасада Облицовочный кирпич
Материал отделки цоколя Декоративный облицовочный камень.
Кровельный материал Гибкая черепица.
Количество спален 2
Гостевая комната Есть
Перекрытия Перекрытия по деревянным балкам
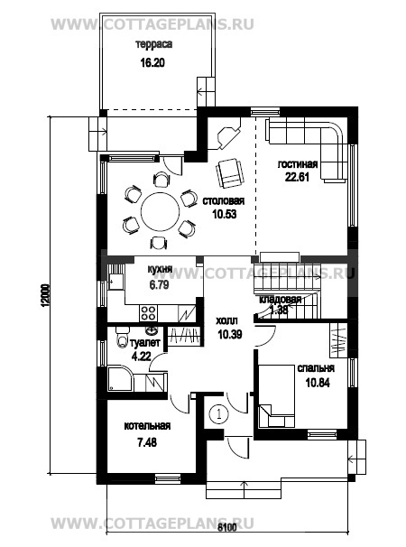
Поэтажный план

Первый этаж.

Редактировать поэтажные планы Разместить на участке Поэтажные планы проект дома 79-22 общ. площадь 142,87 м2
Поэтажные планы проект дома 79-22 общ. площадь 142,87 м2
Редактировать поэтажные планы Разместить дом на Вашем участке

Второй этаж.

Редактировать поэтажные планы Разместить на участке Поэтажные планы проект дома 79-22 общ. площадь 142,87 м2
Поэтажные планы проект дома 79-22 общ. площадь 142,87 м2
Редактировать поэтажные планы Разместить дом на Вашем участке
Фасады
Вопросы Ответы
Не нашли
свой проект?
Задайте вопрос архитектору!
Некорректный ввод - вопрос не отправлен

Нажимая кнопку «Отправить», я даю свое согласие на обработку моих персональных данных, в соответствии с пользовательским соглашением

			Array
(
    [43767147800] => Array
        (
            [Название] => Комплект чертежей АР, КР (архитектурная, конструктивная части)
            [Цена] => 35358
            [Валюта] => RUB
            [Корзина] => 1
        )

)
			
			Array
(
    [0] => Array
        (
            [Название] => Стоимость подробной спецификации-сметы на материалы для строительства дома
            [Цена] => 12500
            [Валюта] => RUB
        )

    [1] => Array
        (
            [Название] => Стоимость подготовки 3-D модели дома, в выбранных вами материалах фасада
            [Цена] => 45000
            [Валюта] => RUB
        )

    [2] => Array
        (
            [Название] => Стоимость внесения изменений
            [Статус] => по согласованию
        )

    [3] => Array
        (
            [Название] => Доставка проекта
            [Статус] => бесплатно
        )

    [4] => Array
        (
            [Название] => При покупке банных чугунных печей Гефест - проект бани
            [Статус] => в подарок
        )

)
			
Комплект чертежей АР, КР (архитектурная, конструктивная части) 35 358 ₽
Стоимость подробной спецификации-сметы на материалы для строительства дома 12 500 ₽  
Стоимость подготовки 3-D модели дома, в выбранных вами материалах фасада 45 000 ₽  
Стоимость внесения изменений по согласованию  
Доставка проекта бесплатно  
При покупке банных чугунных печей Гефест - проект бани в подарок  
Хотите заказать подготовку сметы на строительство этого дома
Хотите заказать подготовку сметы на строительство этого дома?
Заказать подготовку
Как получить проект дома бесплатно? подробнее
Пример спецификации-сметы
Пример проектной документации
Как построить дом не покупая проект
Разместить дом на Вашем участке!
Редактор поэтажных планов
Вопросы Ответы
Предложение о сотрудничестве
Вам может быть интересно