

Проект дома 78-99 площадь 306.5 м2* из пеноблоков, газоблоков, двухэтажный с мансардой, со вторым светом
* - площадь отапливаемых помещений, не включает площади: террасы, крыльца, балконов
Материал | блоки |
Число этажей | 2 этажа |
Гараж | без гаража |
Комнат | 7 |
59 014 ₽
Пример проектной документации
На полной версии сайта Вы найдете больше полезных сервисов
Заказать смету
Заказать строительство
Как получить проект бесплатно
Почему строить этот дом выгодно
поможем разместить дом на участке
проконсультируем вас по выбору фундамента
Характеристики
Площадь отапливаемых помещений | 306.5 м2 |
Состав проекта | АР, КР (архитектурные и конструктивные решения) |
Зеркальная версия | Может быть разработана на заказ |
Габариты здания: ширина 1 (мм.) | 11860 |
Габариты здания: ширина 2 (мм.) | 12860 |
Высота потолков цокольного этажа (мм.) | 2800 |
Высота потолков 1-го этажа (мм.) | 3000 |
Высота потолков мансардного этажа (мм.) | 3000 |
Тип фундамента | Ленточный монолитный железобетонный фундаментЛенточный фундамент из блоков ФБС |
Конструкция внешних стен | Однородная или с теплоизоляционным слоем, согласно климатической зоны застройки. |
Материал несущих стен | Газосиликатные блоки. Пеноблоки. |
Толщина внешних стен (мм.) | 300 или 400мм плюс толщина утеплителя в зависимости от климатической зоны застройки. |
Конструкция пола 1-го этажа | Перекрытия брус LVL Железобетонные плиты перекрытия Монолитные железобетонные перекрытия |
Конструкция пола 2-го этажа | Перекрытия брус LVL Железобетонные плиты перекрытия Монолитные железобетонные перекрытия |
Конструкция кровли | чердачная |
Материал отделки фасада | Декоративная штукатурка. или Декоративный камень. |
Материал отделки цоколя | Декоративный облицовочный камень |
Кровельный материал | МеталлочерепицаГибкая черепицаНатуральная черепица |
Количество спален | 6 |
Гостевая комната | Да |
Сауна | Есть |
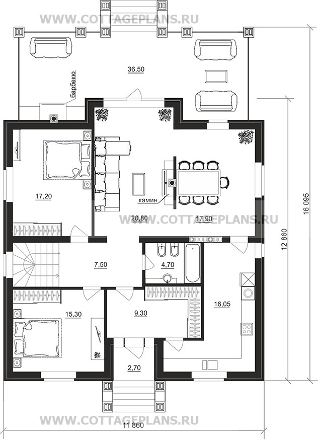
Поэтажный план
Цокольный этаж.
Редактировать поэтажные планы
Разместить на участке


Редактировать поэтажные планы
Разместить дом на Вашем участке
Первый этаж.
Редактировать поэтажные планы
Разместить на участке


Редактировать поэтажные планы
Разместить дом на Вашем участке
Мансардный этаж.
Цокольный этаж.
Редактировать поэтажные планы
Разместить на участке


Редактировать поэтажные планы
Разместить дом на Вашем участке
Первый этаж.
Редактировать поэтажные планы
Разместить на участке


Редактировать поэтажные планы
Разместить дом на Вашем участке
Мансардный этаж.
Цокольный этаж.
Редактировать поэтажные планы
Разместить на участке


Редактировать поэтажные планы
Разместить дом на Вашем участке
Первый этаж.
Редактировать поэтажные планы
Разместить на участке


Редактировать поэтажные планы
Разместить дом на Вашем участке
Мансардный этаж.
Цокольный этаж.
Редактировать поэтажные планы
Разместить на участке


Редактировать поэтажные планы
Разместить дом на Вашем участке
Первый этаж.
Редактировать поэтажные планы
Разместить на участке


Редактировать поэтажные планы
Разместить дом на Вашем участке
Мансардный этаж.
Цокольный этаж.
Редактировать поэтажные планы
Разместить на участке


Редактировать поэтажные планы
Разместить дом на Вашем участке
Первый этаж.
Редактировать поэтажные планы
Разместить на участке


Редактировать поэтажные планы
Разместить дом на Вашем участке
Мансардный этаж.
Цокольный этаж.
Редактировать поэтажные планы
Разместить на участке


Редактировать поэтажные планы
Разместить дом на Вашем участке
Первый этаж.
Редактировать поэтажные планы
Разместить на участке


Редактировать поэтажные планы
Разместить дом на Вашем участке
Мансардный этаж.
Цокольный этаж.
Редактировать поэтажные планы
Разместить на участке


Редактировать поэтажные планы
Разместить дом на Вашем участке
Первый этаж.
Редактировать поэтажные планы
Разместить на участке


Редактировать поэтажные планы
Разместить дом на Вашем участке
Мансардный этаж.

Не нашли
свой проект?
Задайте вопрос архитектору!
свой проект?
Задайте вопрос архитектору!
Комплект чертежей АР, КР (архитектурная, конструктивная части) | 59 014 ₽ | |
Комплект застройщика (комплект чертежей АР, КР в зерк. исп., паспорт проекта, доп. копия проекта) | 77 793 ₽ | |
Комплект застройщика (комплект чертежей АР, КР, паспорт проекта, дополнительная копия проекта) | 66 706 ₽ | |
Комплект чертежей АР, КР (архитектурная, конструктивная части), зеркальная версия | 70 684 ₽ | |
Электронная версия проекта в формате пдф | 17 505 ₽ | |
Стоимость подробной спецификации-сметы на материалы для строительства дома | 18 390 ₽ | |
Стоимость подготовки 3-D модели дома, в выбранных вами материалах фасада | 29 999 ₽ | |
Стоимость внесения изменений | по согласованию | |
Доставка проекта | бесплатно | |
При покупке банных чугунных печей Гефест - проект бани | в подарок |
Как получить проект дома бесплатно? подробнее
Пример спецификации-сметы
Пример проектной документации
Как построить дом не покупая проект
Разместить дом на Вашем участке!
Редактор поэтажных планов
Вопросы Ответы
Предложение о сотрудничестве
- из кирпича и керамических блоков
- общая площадь до 100 м2 с эркером
- общая площадь до 100 м2 с цоколем
- 5 спален с котельной
- Одноэтажные
- Для узких участков
- Небольшие
- На две семьи
- С цоколем
- С гаражом
- 6 спален с котельной
- 5 спален с цоколем и террасой
- 4 спальни с цоколем габариты 10 на 15
- 7 спален с крышей шале
- 5 спален и террасой
- жилых в стиле Райта с 5 комнатами
- жилых в английском стиле
- жилых в современном стиле с террасой
- жилых в стиле Райта с террасой
- жилых с террасой
- с террасой и 6 комнатами
- с террасой, 5 комнатами и эркером
Показать все
Вам может быть интересно
- Проекты
домов из керамических блоков Керакам СуперТермо30,
включённые в акцию Проект дома бесплатно - Проекты домов из кирпича и керамических блоков
- Проекты домов из пеноблоков и газобетона
- Проекты домов из бруса и оциллиндрованного бревна
- Проекты каркасных домов
- Проекты одноэтажных домов
- Проекты домов для узких участков
- Проекты небольших домов
- Проекты коттеджей на две семьи
- Проекты коттеджей с цоколем
- Проекты коттеджей с гаражом
- Проекты домов с сауной, дровяной парной
- Проекты домов с бассейном
- Самые популярные проекты загородных домов и коттеджей нашего каталога